Product Description
Bearing housings play an extremely important role in the construction of rollers used in
belt conveyors. They are responsible for stable seating of rolling bearings and
protection against contamination, moisture, or dust – which directly translates into the durability
of the entire transport system.
At JOLA s.c., we produce precise bearing housings that meet the technical requirements of even the
most demanding industries.
Our offer includes:
- steel and stamped housings, adapted to roller constructions,
- production based on client's technical documentation
- possibility of machining according to required tolerances.
Thanks to modern machinery and strict quality control, our components ensure:
- high wear resistance,
- assembly accuracy,
- durability even in extreme operating conditions.
Contact us if you need
reliable bearing housings for conveyor rollers – we will advise and manufacture
components fully compliant with your
expectations.
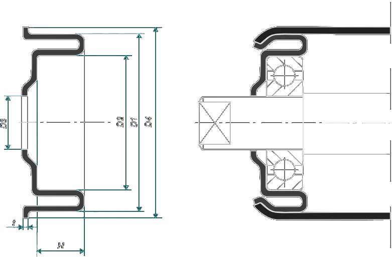
Bearing housing type PKA – technical drawing
Technical specification PKA
| Type |
D1 (mm) |
D2 (mm) |
D3 (mm) |
H (mm) |
t (mm) |
| PKA 63,5×3,2-4,0/6204 |
59 |
47 |
24 |
29 |
2,0 |
| PKA 60,3×2,0/6204 |
57 |
47 |
24 |
38 |
2,0 |
| PKA 76×3,2-4,0/6204 |
71,5 |
47 |
24 |
38 |
2,0 |
| PKA 76×3,2-4,0/6205 |
71,5 |
52 |
29 |
38 |
2,0 |
| PKA 76×3,2-4,0/6206-6305 |
71,5 |
62 |
34 |
43 |
2,0 |
| PKA 89×3,2-4,0/6204 |
84 |
47 |
24 |
38 |
2,0 |
| PKA 89×3,2-4,0/6205 |
84 |
52 |
29 |
38 |
2,0 |
| PKA 89×3,2-4,0/6206-6305 |
84 |
62 |
34 |
43 |
2,0 |
| PKA 108×3,2-4,0/6204 |
102,5 |
47 |
24 |
38 |
2,0 |
| PKA 108×3,2-4,0/6205 |
102,5 |
52 |
29 |
38 |
2,0 |
| PKA 108×3,2-4,0/6206-6305 |
102,5 |
62 |
34 |
43 |
2,0 |
| PKA 133×3,2-4,0/6204 |
127 |
47 |
24 |
38 |
2,0 |
| PKA 133×3,2-4,0/6205 |
127 |
52 |
29 |
38 |
2,0 |
| PKA 133×3,2-4,0/6206-6305 |
127 |
62 |
34 |
43 |
2,0 |
Bearing housing type PKA – technical drawing
Technical specification PKA 4.0-6.0 mm
| Type |
D1 (mm) |
D2 (mm) |
D3 (mm) |
H (mm) |
t (mm) |
| PKA 108/6206-6305/4.0 |
~115 |
62 |
34 |
43 |
4.0 |
| PKA 108/6306/4.0 |
~110 |
72 |
34 |
44 |
4.0 |
| PKA 108/6307/4.0 |
~110 |
80 |
45 |
48 |
4.0 |
| PKA 108/6308/4.0 |
~110 |
90 |
46 |
52 |
4.0 |
| PKA 133/6308/4.0 |
~130 |
90 |
46 |
52 |
4.0 |
| PKA 133/6308/5.0 |
~130 |
90 |
64 |
60 |
5.0 |
| PKA 159/6308/5.0 |
~155 |
90 |
64 |
60 |
5.0 |
| PKA 159/6310/6.0 |
~155 |
110 |
85 |
61 |
6.0 |
| PKA 194/6310/6.0 |
~188 |
110 |
85 |
61 |
6.0 |
Bearing housing type PKB – technical drawing
Technical specification PKB
| Type |
D1 (mm) |
D2 (mm) |
D3 (mm) |
H (mm) |
t (mm) |
| PKB 80×3.0-3.2/6204 |
74.3 |
47 |
27 |
36 |
2.0 |
| PKB 89×2.9/6204 |
83.6 |
47 |
27 |
36 |
2.0 |
| PKB 89×4.0/6204 |
81.3 |
47 |
27 |
36 |
2.0 |
| PKB 89×3.2-4.0/6204 |
84 |
47 |
24 |
38 |
2.0 |
| PKB 108×3.6-4.0/6204 |
102.5 |
47 |
24 |
38 |
2.0 |
| PKB 108×3.0-3.2/6204 |
103.5 |
47 |
24 |
38 |
2.0 |
| PKB 127×3.2-4.0/6204 |
121 |
47 |
24 |
38 |
2.2 |
| PKB 133×3.0-3.2/6204 |
128 |
47 |
24 |
38 |
2.2 |
| PKB 133×3.2-4.0/6204 |
127 |
47 |
24 |
38 |
2.2 |
| PKB 89×3.2-4.0/6205 |
83.6 |
52 |
33 |
43 |
2.0 |
| PKB 108×3.2-4.0/6205 |
102.5 |
52 |
29 |
43 |
2.0 |
| PKB 133×3.2-4.0/6205 |
127 |
52 |
29 |
43 |
2.2 |
| PKB 89×3.2/6206-6305 |
85 |
62 |
34 |
43 |
2.0 |
| PKB 89×3.2-4.0/6206-6305 |
84 |
62 |
34 |
43 |
2.0 |
| PKB 108×3.0-3.2/6206-6305 |
103.5 |
62 |
34 |
43 |
2.0 |
| PKB 108×3.2-4.0/6206-6305 |
102.5 |
62 |
34 |
43 |
2.2 |
| PKB 127×3.2-4.0/6206-6305 |
121 |
62 |
34 |
43 |
2.0 |
| PKB 133×3.0-3.2/6206-6305 |
128 |
62 |
34 |
43 |
2.2 |
| PKB 133×3.2-4.0/6206-6305 |
127 |
62 |
34 |
43 |
2.2 |
| PKB 159×3.2-4.0/6206-6305 |
153 |
62 |
34 |
43 |
2.5 |
Bearing housing type PKZ – technical drawing
Technical specification PKB 4.0 mm
| Type |
D1 (mm) |
D2 (mm) |
D3 (mm) |
H (mm) |
t (mm) |
| PKB 133/6206-6305/4.0 |
127 |
62 |
34 |
43 |
4.0 |
| PKB 133/6306/4.0 |
127 |
72 |
34 |
44 |
4.0 |
| PKB 133/6307/4.0 |
127 |
80 |
45 |
48 |
4.0 |
| PKB 159/6206-6305/4.0 |
153 |
62 |
34 |
43 |
4.0 |
| PKB 159/6306/4.0 |
153 |
72 |
34 |
44 |
4.0 |
| PKB 159/6307/4.0 |
153 |
80 |
45 |
48 |
4.0 |
| PKB 159/6308/4.0 |
153 |
90 |
46 |
52 |
4.0 |
Bearing housing type PKBB – technical drawing
Technical specification PKBB
| Type |
D1 (mm) |
D2 (mm) |
D3 (mm) |
H (mm) |
t (mm) |
| PKBB 89×2.9/6204 |
~82.2 |
47 |
21 |
36 |
1.5 |
| PKBB 89×3.2/6204 |
~83.1 |
47 |
27 |
36 |
2.0 |
| PKBB 89×3.6/6204 |
~82.2 |
47 |
27 |
38 |
2.0 |
| PKBB 89×3.2-3.6/6204 |
~83.1 |
47 |
24 |
38 |
2.0 |
| PKBB 108×3.2/6204 |
~102.1 |
47 |
24 |
38 |
2.0 |
| PKBB 108×3.6/6204 |
~101.3 |
47 |
24 |
38 |
2.0 |
| PKBB 133×3.6/6204 |
~126.3 |
47 |
24 |
38 |
2.2 |
| PKBB 133×4.0/6204 |
~125.5 |
47 |
24 |
38 |
2.2 |
| PKBB 89×3.2-3.6/6205 |
~83.1 |
52 |
33 |
43 |
2.0 |
| PKBB 108×3.2-3.6/6205 |
~102.1 |
52 |
29 |
43 |
2.0 |
| PKBB 133×3.6-4.0/6205 |
~125.5 |
52 |
29 |
43 |
2.2 |
| PKBB 89×3.2/6206-6305 |
~83.7 |
62 |
34 |
43 |
2.0 |
| PKBB 89×3.6/6206-6305 |
~83.1 |
62 |
34 |
43 |
2.0 |
| PKBB 108×3.2/6206-6305 |
~102.1 |
62 |
34 |
43 |
2.0 |
| PKBB 108×3.6/6206-6305 |
~102.1 |
62 |
34 |
43 |
2.0 |
| PKBB 133×3.6/6206-6305 |
~126.3 |
62 |
34 |
43 |
2.2 |
| PKBB 133×4.0/6206-6305 |
~125.5 |
62 |
34 |
43 |
2.2 |
| PKBB 159×3.6-4.0/6206-6305 |
~152.3 |
62 |
34 |
43 |
2.5 |
Bearing housing type PKOM – technical drawing
Technical specification PKOM
| Type |
D2 (mm) |
D3 (mm) |
D4 (mm) |
H (mm) |
t (mm) |
| PKOM 60.3×2.0/6204 |
47 |
20.5 |
59 |
15 |
1.5 |
Bearing housing type PKRL – technical drawing
Technical specification PKRL
| Type |
D1 (mm) |
D2 (mm) |
D3 (mm) |
H (mm) |
t (mm) |
| PKRL 89×2.9-3.2/6204 |
83 |
47 |
24 |
37 |
2.0 |
| PKRL 89×3.6/6204 |
82 |
47 |
24 |
37 |
2.0 |
| PKRL 108×2.9-3.0/6204 |
102 |
47 |
24 |
37 |
2.0 |
| PKRL 108×3.2-3.6/6204 |
101 |
47 |
24 |
37 |
2.0 |
| PKRL 108×4.0/6204 |
100 |
47 |
24 |
37 |
2.0 |
| PKRL 133×3.2-3.6/6204 |
126 |
47 |
24 |
37 |
2.2 |
| PKRL 133×4.0/6204 |
125 |
47 |
24 |
37 |
2.2 |